Sie sind hier: >>> Leistungen >>> Anlagenplanung
Anlagenplanung
Anlagenplanung
Wir bieten Ihnen umfassende Leistungen im Bereich der Anlagenplanung an: |
Anlagenplanung 2D |
Anlagenplanung 3D |
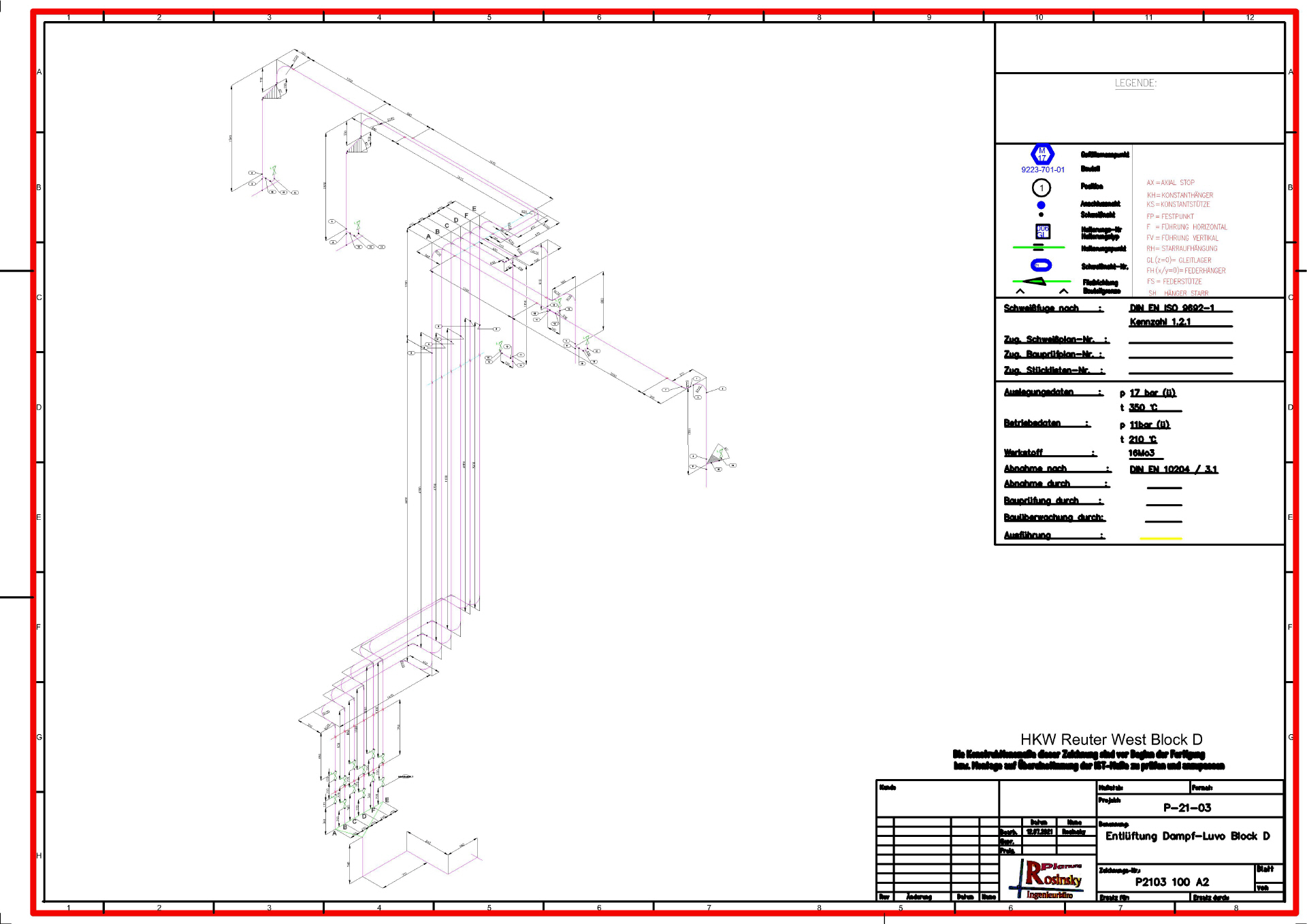
Isometrie
|
Isometrie
Halterung mit Sekundärstahlbau
|
ausgeführte Rohrleitungshalterung
|
Federstützen
|
3D-Modell
|
3D-Modell
|
3D-Modell
|
Photovoltaikmodul als Modell
|
Photovoltaikanlage
|
Beratung
Gerne beraten wir Sie umfassend und geben Ihnen weitere Informationen. Sprechen Sie uns einfach an. |











